case studies

GIStance Hungary

1052-HU Budapest

Váci utca 15.

Tel: +36 (1) 318 7497

Fax: +36 (1) 317 7291

Case Studies


Case Study: The Plazs

The Plazs is a three week event held once a year in France, Belgium, and Hungary. In Budapest last year, a 1.4 kilometre, sandy beach was created in the middle of the city and it attracted more than 1.2 million visitors. The event required the precise coordination of thousands of workers, sponsors, and organizers.


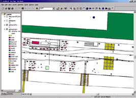
Since the beach has to be carefully laid out to reflect very specific points, a DynaGIS was perfect for the job. The Plazs organizers needed to way to manage all of these individual points without having to spend valuable time sifting through heaps of paper and random data files. The above images illustrate how the beach was digitized and then layered to reflect all of the location specific information.


3D Visualizations of the Plazs 2004.